Lockwood 8002 Series Swing Door Operator
The Lockwood Swing Door Operator is an electro-hydraulic operator designed for a wide variety of applications. It is suitable for almost all types of external and internal swing doors and has been developed to cope with tough conditions.
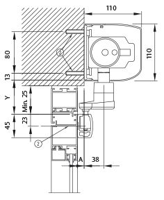
The operator can be mounted on either side of the door for pull or push action and is suitable for single or double doors fitted with butt hinges or pivots. With remote, push button and motion sensor options, the 8002 provides a full range of electronic door opening solutions.
Features
- Opens with motor and closes with spring
- Opening and closing speeds can be varied individually
- Door opening angle adjustable up to 120°
- A range of manual and automatic activation units available
- Impulse and presence detection sensors available
- Non Handed
- Push or pull opening solutions
Applications
- Disability Entrance solutions
- Hospital and Health Centre Applications
- Access Controlled Locking
- In Swinging or Out Swinging Doors
Meets requirements for door weights/widths stated in the:
- Controlled door closing, EN 1154 size 3 - 6
- Coordination unit for rebated doors, EN 1158
- Door closer with opening device (Swing door operator), DIN 18263-4 AU Size 3-6
- ANSI/BHMA A156.10, A156.19
- UL325/CUL325
- SITAC 0710/97
Lockwood 8002 Series Swing Door Operator
Similar products
- Lockwood
Lockwood 2636FS Free-Motion® Door Closer with Cam-Motion® Technology
Designed to feature the use of Free-Motion functionality and the unique benefits of CAM Action Technology. A completely unique solution. - Lockwood
Lockwood FD484 for Double Doors with Coordinator and Electromechanical Hold-Open Device
The FD484 is designed for applications such as hotels and hospital corridors, where both door leafs are usually kept open - Lockwood
Lockwood FD480 Electromechanical Hold-Open Device for Single Door
The FD480 is suitable for applications where fire doors are constantly kept open. - Lockwood
Lockwood 2516EMC Series Electromechanical Hold-Open Device for Single Doors
The Lockwood 2516EMC is a small single door electromechanical hold open device system with a sliding arm. - ASSA ABLOY
DC700G-CM – Cam-Motion® Closer with integrated Close-Motion®
Door closer with Cam-Motion® technology and integrated Close-Motion® element for safe and noiseless closing - Yale
Yale Y2400 Series Power Adjustable Door Closer
Ideally suited to doors in high traffic areas. With power adjustment range from 2-4 strength. - Lockwood
Lockwood 1022 Hydraulic Door Closer
Suitable for outward opening doors up to 35kg
Contact us
Door Hardware
+3
Keying Systems and CylindersPadlocks and SafesWindow Products
Phone
E-mail