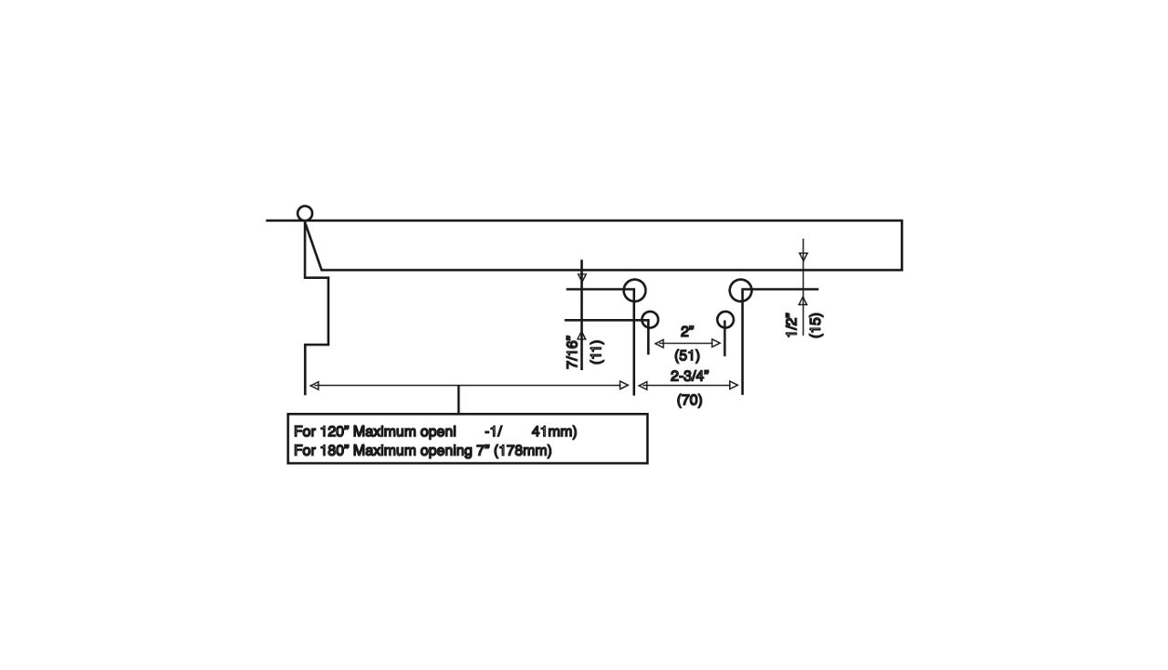
DC616U Parallel arm installation

Closer mounted on door. Bracket on frame soffit.

769fa-dc616uparallelarminstallation.jpg
769fa-dc616uparallelarminstallation.jpg

Cookie consent

This video is hosted by YouTube. By showing the external content you accept the terms and conditions of www.youtube.com.

*Your choice will be saved in a cookie until you have closed your browser.