jumpToMainContent
It looks like you are visiting from a different region. Select your country or region for location-specific content.
Go to Ireland
ASSA ABLOY
  • Service
  • Authorized Distributors
  • About ASSA ABLOY
  • Products
  • Solutions
  • Stories
  • Contact us
  • Digital Access Solutions
  • OneSystem Locks
  • Door Closers
  • Panic Exit Devices
  • CY110
  • Door Handles
  • Architectural Glass Solution
  • Fire Rated Glass
  • General Accessories
ASSA ABLOY
  • Products
  • OneSystem Locks

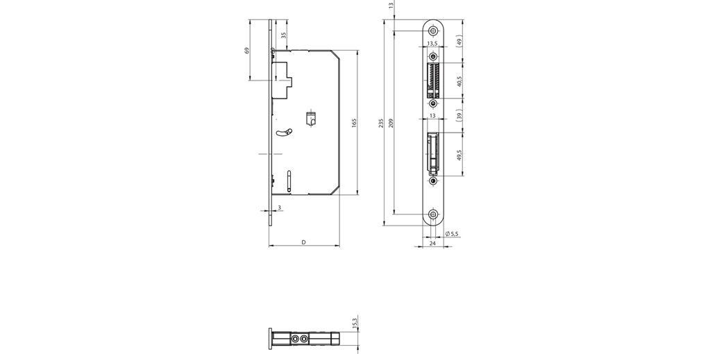
Espagnolette N1410

Product description

  • OneSystem espagnolette N1410 for automatic locking of the inactive leaf upwards or downwards for double-leaf doors. For use with OneSystem locks from the series N1000, N1050 and N11XX on the active leaf of double-leaf doors.

Features

  • Environmental product declaration (EPD) in accordance with EN 15804
  • Tested for 1,000,000 cycles and 300 kg door weight
  • Compliance with EN 12209
  • Automatic locking up- and downward pasive leaf
  • Small rear backset 17 mm
  • VarioFix for subsequent adjustment
  • Patented "Easy Installation" for easy mounting of the rods
  • Continuous screw connection of fittings
  • Suitable espagnolette integrated in the striking plate
  • 20 mm bolt throw with a single rotation
  • Also available as a fire protection version
  • Closed lock case
  • Latch DIN left/right reversible without tools
  • Stainless steel faceplate
  • Deadbolt with anti-tampering design
  • Developed for Euro profile cylinder and Swiss round Profile cylinder
    a3a5e-n1410.jpg
    a3a5e-n1410.jpg

    1 of 2

    Cookie consent

    This video is hosted by YouTube. By showing the external content you accept the terms and conditions of www.youtube.com.

    *Your choice will be saved in a cookie until you have closed your browser.

    • Products
    • Solutions
    • Stories
    • Contact us
    • Contact us
    • LinkedIn
    • Facebook
    • Instagram
    • YouTube
    • © ASSA ABLOY
    • Legal
    • Privacy center
    • Whistleblowing
    ASSA ABLOY
    Experience a safer and more open world
    • Products
    • Digital Access Solutions
    • OneSystem Locks
    • Door Closers
    • Panic Exit Devices
    • CY110
    • Door Handles
    • Architectural Glass Solution
    • Fire Rated Glass
    • General Accessories
    • Solutions
    • Solutions by topic
    • Access Control
    • BIM & specification
    • Sustainability
    • Master Key Systems
    • Solutions for every industry
    • Aviation
    • Education
    • Distribution and logistics
    • Entertainment and public facilities
    • Finance and banking
    • Government and military
    • Healthcare
    • Hospitality
    • Industry and manufacturing
    • Mining
    • Office and enterprise
    • Residential
    • Retail
    • Shipyards
    • Transportation
    • Multi-Residential
    • Stories
    • Contact us