7113-310-652

Tanım:

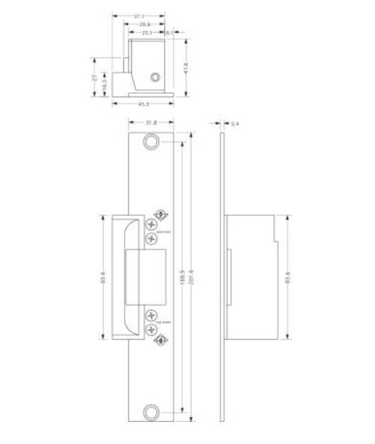
7113-310-652 elektrikli kilit karşılığı, günlük geçiş sayısının fazla olduğu çelik, alüminyum ve ahşap kapılar için uygundur. 

Özellikler:

  • Günlük geçiş sayısının fazla olduğu ahşap, alüminyum ve çelik kapılar için uygundur.
  • “Enerji varken/yokken kilitli” çalışacak şekilde montaj esnasında değiştirilebilir.
  • Simetrik gövde yapısı nedeniyle sağ yada sol kapılar için montaj kolaylığı sağlar.
  • Normal çalışma gerilimi 12 VDC olup, 24 VDC modeli opsiyonel olarak mevcuttur.
  • Yüksek dayanıklılığı (907 kg) sebebiyle güvenliğin ön planda olduğu uygulamalar için idealdir.
  • Gövde tek parça çinko-alüminyum döküm olup, hareketli kilit karşılığı paslanmaz çelik malzemeden imal edilmiştir.
  • Adams Rite 4750 serisi yüksek güvenlikli kilitler ile uyumludur
ce376-7113-electric-strike.JPG
ce376-7113-electric-strike.JPG

Cookie consent

This video is hosted by YouTube. By showing the external content you accept the terms and conditions of www.youtube.com.

*Your choice will be saved in a cookie until you have closed your browser.