Escape door strike 332.80 (RRAKRR)

Product description

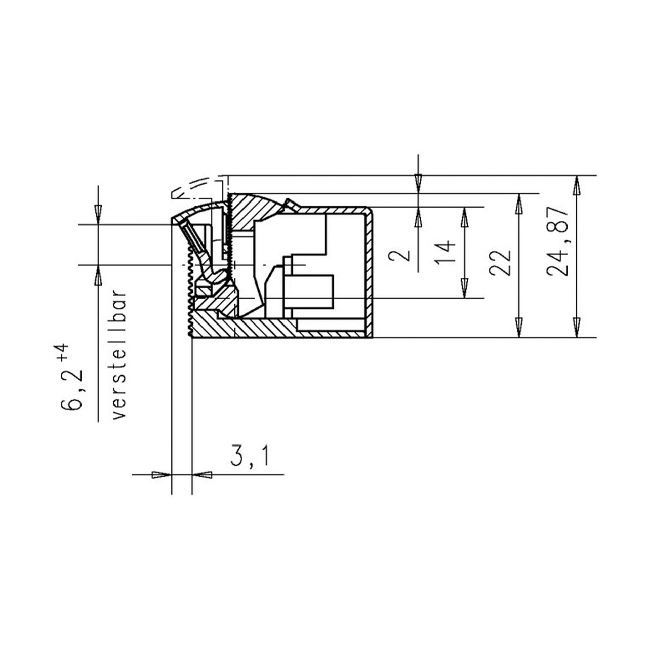
The compact construction of the effeff 332.80 allows rapid, straightforward mounting onto a wide variety of door frame and profiles.

Overview of Advantages

  • Radius latch
  • Compact design
  • Min. 2000 N, max. 3000 N holding force in accordance with prEN 13637
  • Unlocking under pre-load with 100% holding force
  • Monitoring contact is potential-free and armature contact is non-isolated *
  • DL/DR and horizontal universal installation position
  • Low power consumption
  • Compact fitting dimensions
  • Adjustable FaFix® latch: 4 mm adjustment range with 0.5 mm increments
  • Adjustable via Fix grooves in housing
  • Monitoring flap moves together with the FaFix® screw-on attachment, i.e. the switching point always remains the same
  • Optionally available with fixed latch

Note

  • Can only be used as a supplementary locking device on fire doors

* Coupling Relay 7480 is required for parallel operation.

Escape door strike 332.80 (RRAKRR) 1
Escape door strike 332.80 (RRAKRR) 1

1 of 3

Cookie consent

This video is hosted by YouTube. By showing the external content you accept the terms and conditions of www.youtube.com.

*Your choice will be saved in a cookie until you have closed your browser.