JPM2100

Panikkbeslag 90+ serien

  • For passiv utadslående rømningsdør med høy personbelastning

Egenskaper

  • Panikkbeslag for passiv del av utadslående dør
  • Panikkbeslag med horisontal trykkplate i lakkert aluminium
  • Sertifisert og CE-merket i henhold til kravene i Europastandard EN 1125
  • Godkjent for bruk på branndører
  • Kan enkelt kappes ved montering og tilpasses dørmål i bredde og høyde
  • Samme beslag kan monteres for høyre- eller venstre slagretning
  • Leveres med sluttstykker A92, A93 og A96 for ulike karmtyper
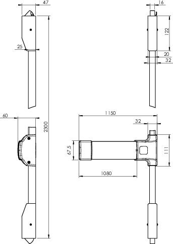
  • For dørbladbredde 300 - 1300mm

Funksjon

  • Døren kan alltid åpnes fra innsiden med panikkbeslaget
  • Kan benyttes sammen med panikkbeslag 1100 for aktiv dørfløy

  • Max. Bredde 1300mm
  • Max. Høyde 2300mm (2100)
  • Max. Høyde 3150mm (2100 forlengersett)

Utførelse

  • 2100 Panikkbeslag hvit/grønn.
  • 2100 Panikkbeslag sølv
  • 2100 Panikkbeslag svart/rustfri design

Tilbehør

  • Sluttstykke for nedfelling i gulv (rustfritt stål).
  • Skjøtesett for dører opptil 3200mm
  • Mikrobryter leveres som tilbehør til 1100 og 2100

1 of 2

Cookie consent

This video is hosted by YouTube. By showing the external content you accept the terms and conditions of www.youtube.com.

*Your choice will be saved in a cookie until you have closed your browser.