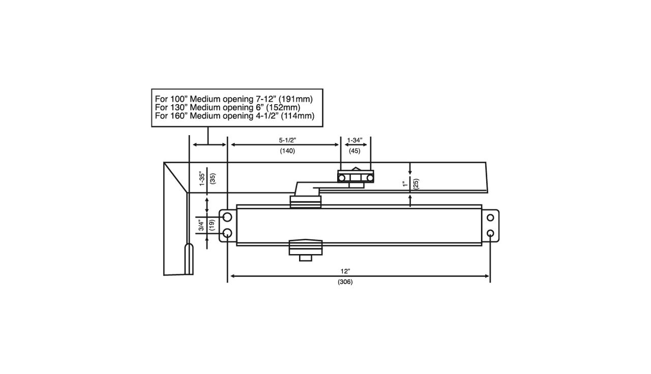
DC616U Regular arm installation

Closer mounted on door. Arm jamb bracket on frame face.

e367b-dc616uregularinstallation.jpg
e367b-dc616uregularinstallation.jpg

Cookie consent

This video is hosted by YouTube. By showing the external content you accept the terms and conditions of www.youtube.com.

*Your choice will be saved in a cookie until you have closed your browser.